1.150.000 €
Ref: gandy045
Descripción
A sólo 5 minutos de Marbella, un residencial inmerso en un magnífico espacio natural con una planificación arquitectónica moderna y minimalista.
Quintessence te ofrece un lugar en el que te sentirás a gusto todo el año, avalado por magníficos servicios de ocio y bienestar, excelentes calidades y vistas al mar.
El centro de Marbella, su paseo marítimo, senderos, bosques, La Costa del Golf, marinas y playas. TODO al alcance de tu mano.
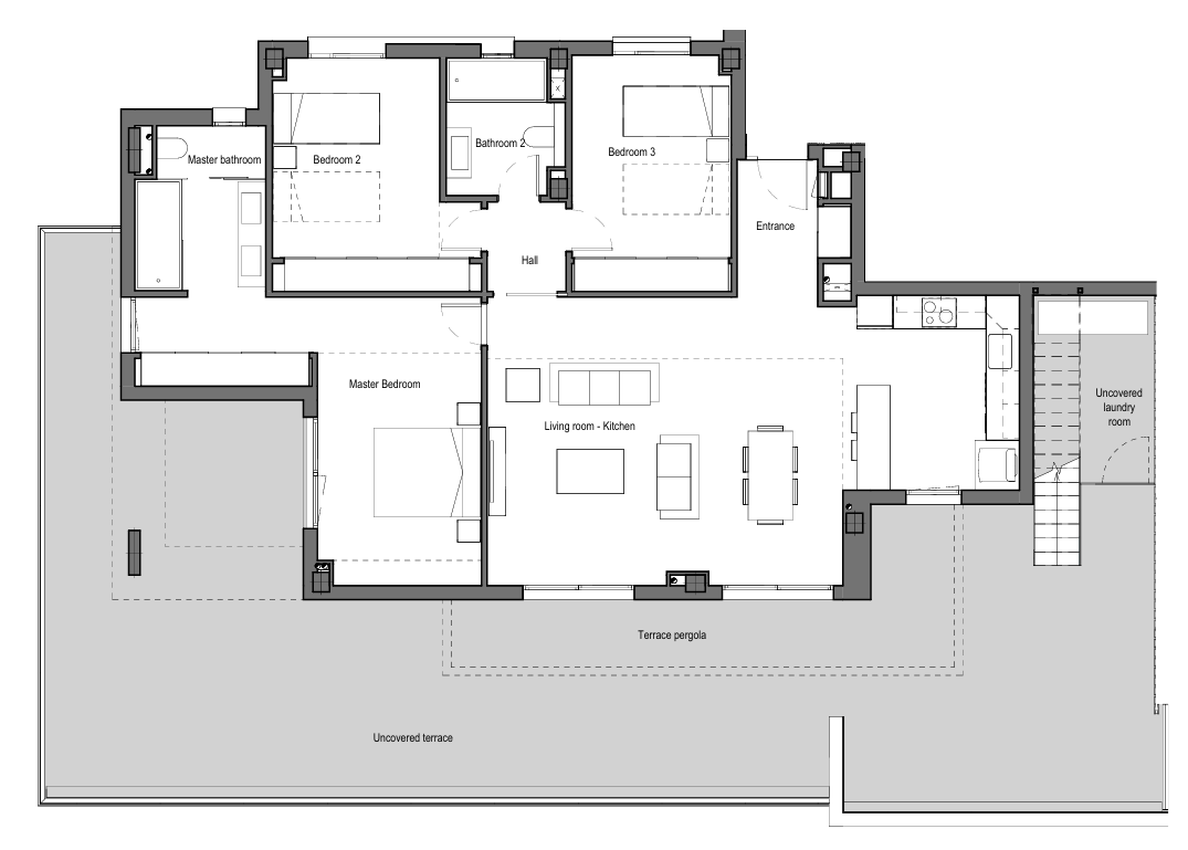
Un ático, con estancias luminosas, diáfanas y elegantes nos recuerdan que el diseño, la calidad en las terminaciones y el gusto por los pequeños detalles son las características de Quintessence. Un espacio inteligente, donde podrás controlar la seguridad, la iluminación y el acceso a la vivienda.
La Costa del Sol lo tiene TODO, en un estilo de vida único y saludable.
Características
Generales
Superficies
Estado
Equipamiento
Servicios
Calidades
Seguridad
Precio
1.150.000 €
10.748 €
Hipoteca
CUOTA MENSUAL
---
Importe total
Inmueble + gastos - entrada
---
Ver desglose
Los resultados son orientativos y no vinculantes y estan calculados con los datos introducidos.
Certificado energético
|
CALIFICACIÓN ENERGÉTICA
|
Consumo energía kW h / m2 año |
Emisiones CO2 kg CO2 / m2 año |
|---|---|---|
| A | 0 | 0 |
| B | ||
| C | ||
| D | ||
| E | ||
| F | ||
| G |
Situación y Entorno
Los Monteros | Rio Real-Los Monteros

















