3.700.000 €
Ref: gandy091
Descripción
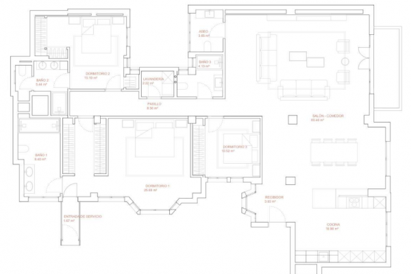
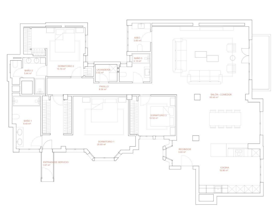
Situado en el barrio Los Jerónimos, Madrid, completamente reformado y amueblado de aproximadamente 232 m2.
En un edificio clásico con portero y en una cuarta planta con terraza para disfrutar las vistas. Dispone de 3 dormitorios, 3 baños, uno de ellos en suite y un aseo. Orientado al oeste y todo exterior.
Un gran salón-comedor, zona de lavandería y trastero. Iluminación de toda la vivienda LED de bajo consumo y controlada con Google Home. Los electrodomésticos son de alta gama e integrados y las persianas son motorizadas.
Es un barrio maravilloso para vivir en Madrid, donde se encuentra el parque del Retiro, una gran zona verde para disfrutar de aire fresco en una gran ciudad, el Museo del Prado y el Real Jardín Botánico.
Está muy bien comunicado en trasporte público, con varias paradas de metro o autobús. Muchos restaurantes, algunos de ellos con estrella Michelin.
Descubre Los Jerónimos, tiene algo especial.
Características
Generales
Superficies
Estado
Equipamiento
Calidades
Precio
3.700.000 €
15.948 €
Rebajado (2,63%)
Certificado energético
|
CALIFICACIÓN ENERGÉTICA
|
Consumo energía kW h / m2 año |
Emisiones CO2 kg CO2 / m2 año |
|---|---|---|
| A | ||
| B | ||
| C | ||
| D | ||
| E | ||
| F | ||
| G |
Situación y Entorno
Retiro














